Espartinas. Chalet de diseño.
Ref. 1500
Datos Generales
Buen estado
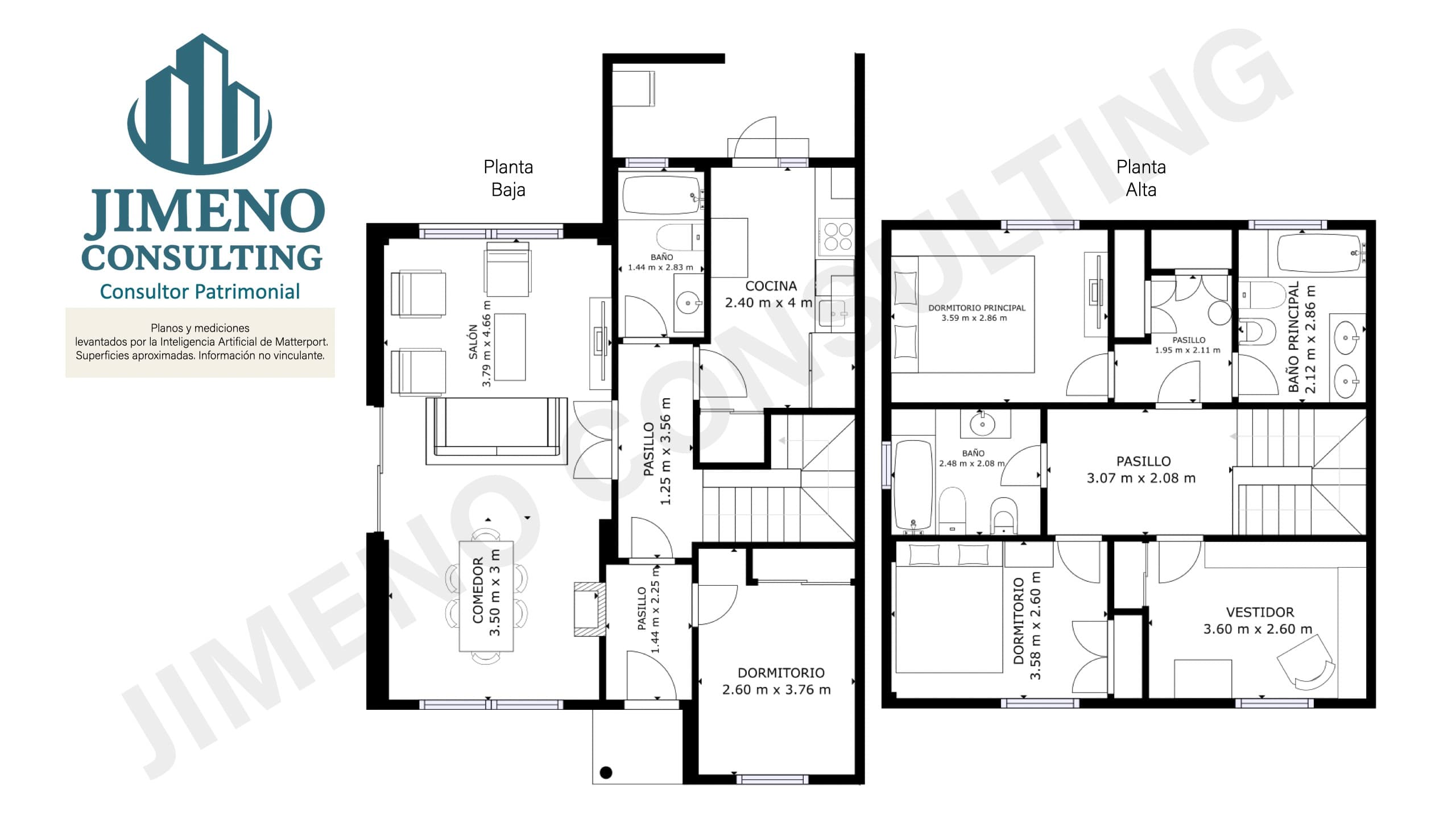
181 m² construidos
144.8 m² útiles
463.29 m² parcela
5 dormitorios
3 baños
Oeste
2004 - 22 años.
Calefacción
Aire acondicionado
Garaje
Piscina
Trastero
Espartinas. Chalet de diseño.
Ref. 1500
Descripción de la Propiedad
¡Nuestros honorarios son GRATIS para el COMPRADOR!
Vivienda familiar de diseño con jardín, piscina, salón de invierno y despacho — perfecta para disfrutar y teletrabajar
Si buscas un hogar donde reine la paz, la luz y el confort, esta casa te enamorará.
Con 181 m² construidos y un diseño contemporáneo, combina funcionalidad y estilo. Dispone de 5 dormitorios (uno habilitado como vestidor y otro como despacho), 3 baños completos y un amplio salón con tres fachadas, inundado de luz natural durante todo el día.
En la planta baja destaca un salón de invierno con barbacoa, el espacio perfecto para reuniones familiares o con amigos en cualquier época del año. Desde aquí accedes al jardín privado con piscina de diseño, un oasis de relax y diversión.
La cocina independiente, totalmente equipada, ofrece un estilo moderno y práctico. Además, cuenta con garaje para coche grande, trastero, y ventanas lacadas en blanco que aportan elegancia y luminosidad.
Es una vivienda pensada para familias que valoran la tranquilidad, el confort y la calidad de vida, con espacios para convivir, trabajar y disfrutar.
Destaca por detalles que marcan la diferencia:
🏊 Piscina de diseño, para disfrutar el verano en familia.
🔥 Salón de invierno con barbacoa, para reunir a familia y amigos.
🌞 18 placas solares, reduce tu factura a cero.
🚿 Aerotermia, te produce agua caliente sostenible.
⚡ Cargador para coche eléctrico, “la gasolinera en casa”.
🌿 Robot cortacésped, mantiene el jardín siempre impecable.
💧 Pozo de agua para el riego del jardín, práctico y sostenible.
📱 Videotelefonillo automático, abre al repartidor desde el móvil.
🪟 Puertas de cristal blindado en salón y cocina, elimina rejas.
🧑💻 Despacho en el jardín, para teletrabajar o zona de estudio.
🔥 Salón comedor con chimenea, muy luminoso y ventilado.
👗 Dormitorio transformado en vestidor, un sueño.
🌅 Dormitorio principal con vistas despejadas, donde cada mañana verás el amanecer sobre un olivar con la plaza de toros en el horizonte — un paisaje tan sereno como inspirador.
Una casa acogedora, eficiente y lista para entrar a vivir.
Ideal para quienes buscan una vida tranquila, moderna y llena de momentos felices en familia.
.png&w=640&q=75)




























































